Immobiliare Taiti

PRIMA VALLATA TERRATETTO DI 115 MQ CON AMPIA RESEDE CARRABILE

Condividi immobile su:

MQ 115mq Camere 3 Bagni 1 €210.000

Cod. immobile: VA03

VA03 (22) (11897)VA03 (27) (11894)VA03 (17) (11895)VA03 (24) (11893)VA03 (13) (11899)VA03 (20) (11889)VA03 (26) (11890)VA03 (12) (11898)VA03 (19) (11896)VA03 (14) (11900)VA03 (15) (11901)VA03 (16) (11902)VA03 (2) (11903)VA03 (4) (11905)VA03 (6) (11906)100 (11908)VA03 (18) (11888)

Descrizione immobile

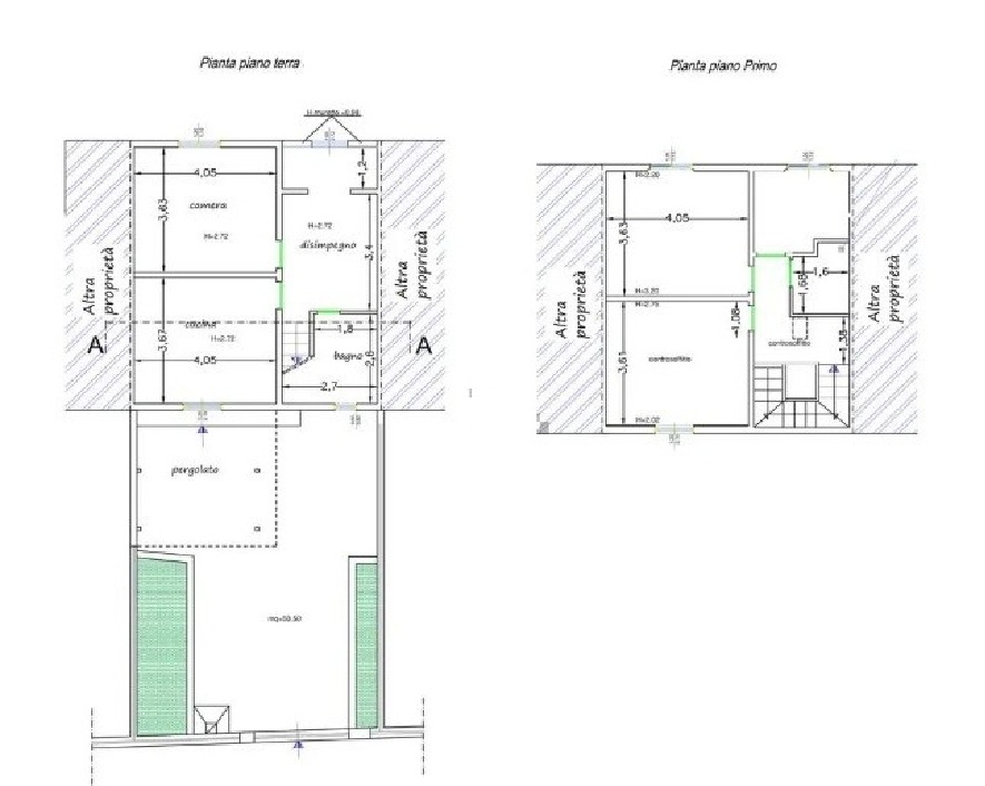
(rif. VA03) A 3 minuti da Prato in direzione Vaiano, interessante terratetto a schiera di 115 mq libero su due lati con ampia resede frontale carrabile, l'immobile suddiviso in 5 vani e disposto su due livelli e composto al piano terra da ingresso, su un ampio disimpegno uso salotto, cucina abitabile con accesso alla resede tergale, sala o camera matrimoniale e bagno con doccia e sanitari finestrato. primo piano: due camere matrimoniali e stanza studio/camerina. Ristrutturato recentemente il piano terra, piano primo da rimodernare. Spazio esterno pavimentato ideale per pranzi e cene all'aperto grazie alla presenza di un barbecue in muratura e vari annessi comodi per uso rimessaggio e anche carrabile per moto ed auto se uno desidera un parcheggio privato. zona di facile parcheggio. termo singolo a metano diviso a zone. acqua calda con caldaia a metano oltre boiler elettrico. predisposizione aria condizionata, impianto di allarme, cablaggio rete internet e tv satellitare in tutte le stanze. 

Vuoi maggiori informazioni?

Nome e cognome*

Indirizzo e-mail*

Recapito telefonico

Informazioni dettagliare dell'immobile*

Per migliorare l'esperienza di navigazione questo sito utilizza cookies, anche di terze parti. Clicca su "acconsento" per abilitarne l'uso. Se vuoi saperne di più o negarne l’esecuzione consulta la nostra informativa cookie completa. Acconsento